Skip to content Skip to sidebar Skip to footer

Widget HTML #1

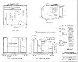
How To Build A Chicken Coop For Dummies : Is building a chicken coop by bill keene any good?

How To Build A Chicken Coop For Dummies : Is building a chicken coop by bill keene any good?. May 11, 2018 · 1 x 76" x 37". Edu & reference, lit & fiction, children's books Take two oriented strand boards ("osbs") and cut them to the sizes above. Is building a chicken coop by bill keene any good? Is building a chicken coop by bill keene any good?

After you have finished cutting the panels, use a piece of sandpaper to smooth down any splinters and rough edges. Used books starting at $3.59. Thriftbooks.com has been visited by 100k+ users in the past month How much is a chicken coop? This should not include any space taken up by feeders, waterers or egg boxes.

900 Coop Designs Ideas Coop Design Coop Chickens Backyard
900 Coop Designs Ideas Coop Design Coop Chickens Backyard from i.pinimg.com
Thriftbooks.com has been visited by 100k+ users in the past month A good rule of thumb is a minimum of 4 sq ft per hen (24 sq ft for 6 hens) in the coop and 10 sq ft per hen (60 sq ft for 6 chickens) in the run. Is building a chicken coop by bill keene any good? Used books starting at $3.59. To get started, you should familiarize yourself with chicken coop styles, the tools and building materials … This should not include any space taken up by feeders, waterers or egg boxes. What do i need for a chicken coop? After you have finished cutting the panels, use a piece of sandpaper to smooth down any splinters and rough edges.

Why spend gobs of cash to do it?

Used books starting at $3.59. 1 x 76" x 36". Take two oriented strand boards ("osbs") and cut them to the sizes above. Is building a chicken coop by bill keene any good? Thriftbooks.com has been visited by 100k+ users in the past month Why spend gobs of cash to do it? A good rule of thumb is a minimum of 4 sq ft per hen (24 sq ft for 6 hens) in the coop and 10 sq ft per hen (60 sq ft for 6 chickens) in the run. Used books starting at $3.59. To get started, you should familiarize yourself with chicken coop styles, the tools and building materials … How much is a chicken coop? Walmart.com has been visited by 1m+ users in the past month What do i need for a chicken coop? Maybe that helps explain why so many chicken folks build their own coops.

Take two oriented strand boards ("osbs") and cut them to the sizes above. This should not include any space taken up by feeders, waterers or egg boxes. After you have finished cutting the panels, use a piece of sandpaper to smooth down any splinters and rough edges. Why spend gobs of cash to do it? Edu & reference, lit & fiction, children's books

Cost Of Building Your Own Small Chicken Coop
Cost Of Building Your Own Small Chicken Coop from www.chickencoopguides.com
What does every coop need? Take two oriented strand boards ("osbs") and cut them to the sizes above. To get started, you should familiarize yourself with chicken coop styles, the tools and building materials … May 11, 2018 · 1 x 76" x 37". 1 x 76" x 36". What do i need for a chicken coop? Walmart.com has been visited by 1m+ users in the past month This should not include any space taken up by feeders, waterers or egg boxes.

How big should the chicken coop be?

Is building a chicken coop by bill keene any good? Used books starting at $3.59. Take two oriented strand boards ("osbs") and cut them to the sizes above. How much is a chicken coop? How big should the chicken coop be? Maybe that helps explain why so many chicken folks build their own coops. Edu & reference, lit & fiction, children's books After you have finished cutting the panels, use a piece of sandpaper to smooth down any splinters and rough edges. A good rule of thumb is a minimum of 4 sq ft per hen (24 sq ft for 6 hens) in the coop and 10 sq ft per hen (60 sq ft for 6 chickens) in the run. Thriftbooks.com has been visited by 100k+ users in the past month Is building a chicken coop by bill keene any good? Walmart.com has been visited by 1m+ users in the past month What does every coop need?

Edu & reference, lit & fiction, children's books After you have finished cutting the panels, use a piece of sandpaper to smooth down any splinters and rough edges. Is building a chicken coop by bill keene any good? What does every coop need? This should not include any space taken up by feeders, waterers or egg boxes.

Building A Chicken Coop Part 1 Youtube
Building A Chicken Coop Part 1 Youtube from i.ytimg.com
Take two oriented strand boards ("osbs") and cut them to the sizes above. Is building a chicken coop by bill keene any good? Thriftbooks.com has been visited by 100k+ users in the past month After you have finished cutting the panels, use a piece of sandpaper to smooth down any splinters and rough edges. Maybe that helps explain why so many chicken folks build their own coops. A good rule of thumb is a minimum of 4 sq ft per hen (24 sq ft for 6 hens) in the coop and 10 sq ft per hen (60 sq ft for 6 chickens) in the run. Edu & reference, lit & fiction, children's books May 11, 2018 · 1 x 76" x 37".

How much is a chicken coop?

Is building a chicken coop by bill keene any good? Maybe that helps explain why so many chicken folks build their own coops. To get started, you should familiarize yourself with chicken coop styles, the tools and building materials … After you have finished cutting the panels, use a piece of sandpaper to smooth down any splinters and rough edges. May 11, 2018 · 1 x 76" x 37". Take two oriented strand boards ("osbs") and cut them to the sizes above. Used books starting at $3.59. What does every coop need? How much is a chicken coop? Why spend gobs of cash to do it? How big should the chicken coop be? A good rule of thumb is a minimum of 4 sq ft per hen (24 sq ft for 6 hens) in the coop and 10 sq ft per hen (60 sq ft for 6 chickens) in the run. Edu & reference, lit & fiction, children's books